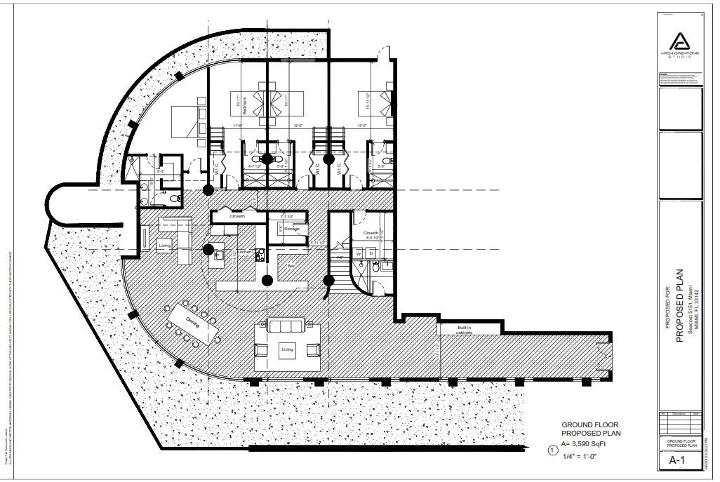
Seacoast Miami 5151 Penthouse
Location: Miami Beach, Florida.
Project Year: 2020-2021
Status: Finalized.
Description:
We collaborated on a penthouse renovation project in Miami Beach with a unforgettable ocean view. The spacious blank canvas was transformed into a family-oriented space that capitalized on the stunning view, ample natural light, and generous dimensions. The design concept centered around an industrial theme, seamlessly blending modern and high- tech styles. Emphasizing the height of the space, we created a captivating gallery entrance that drew inspiration from the ocean, offering a unique and inspiring living experience. To achieve a natural look, we utilized materials like wood, metal, and bricks, adding warmth and texture to the overall design, and enhancing the connection with the beautiful coastal surroundings.





